伊丹中央貸店舗 西側 1階
当社管理物件
★事業用・貸店舗
★【事業用定期借家契約:期間5年】
★飲食店不可
★2WAY 阪急伊丹駅・徒歩6分/JR伊丹駅・徒歩8分
★関西スーパー、商店街まで徒歩1分以内♪
※従前ご契約『和菓子店舗』使用の内装となります
※引渡しは居抜き物件『現状渡し』の為、
店舗内の内装工事等は借主様負担となります
※【残置物】※ご入居時確認事項あり
エアコン2基/ダウンライト
- 賃料/坪単価
- 16万5,000円 /
1.36万円
- 坪数/面積
- 12.09坪 /
40.00㎡
- 所在階
- 1階
- 管理費・共益費
- -
- 敷金
- 20万円
- 礼金
- 33万円
-
情報の見方
担当者のコメント 代表取締役 小山 繁

- イーアールエーハートフルハウスです!
尼崎市を中心にあなたの理想のお部屋をらくらく&スピーディーに検索♪
お客様一人一人の状況に合わせた物件のご提案を心掛けております。
ご希望の条件等お伝え頂ければ、阪神間全ての物件情報の中から、あなたにピッタリの物件をご紹介させて頂きます。ぜひ、理想の物件をお探しの皆様のお問い合わせを心よりお待ちしております。
ポイント・特徴
貸店舗 2way 阪急伊丹駅徒歩6分 JR伊丹駅徒歩8分 居抜き物件 現状有姿 期間5年 定期借家契約 40平米 商業地域 近隣駐車場 飲食店不可
物件概要
【店舗一部】 物件番号:96249156 情報更新日:2025年12月11日 次回更新予定日:2025年12月25日所在地 兵庫県伊丹市中央5丁目4番7号 交通 坪数(面積) 12.09坪(40.00㎡) 賃料/坪単価 16.5万円/1.36万円 管理費・共益費 - 敷金/礼金/保証金 20万円/33万円/- 償却/敷引 -/- 更新料 0.55万円 権利金/雑費 -/- 造作譲渡金 - 駐車場/月額料金 無/- 保険加入/料金 有/27,000円 保険名/保険期間 当社指定の火災保険/2年 保証人代行義務 必加入 保証会社 日本セーフティー 保証会社詳細 ☆保証会社加入要【事務所・店舗物件:Nテナント24+】 初回保証料:賃料総額の100% 更新保証料:賃料総額の10%~/1年毎 向き 北 築年月(築年数) 1969年 8月 (築56年) 契約期間 定期借家 5年 種別/構造 店舗一部/軽量鉄骨 用途地域 商業 部屋/所在階/階建 -/1階/2階建 総戸数 3戸 現況/引渡時期 空家/相談 取引態様 専任媒介 物件番号 96249156 取引条件の有効期限 2025年12月25日 設備条件 - 陽当り良好
- 事務所可
- 法人可
- サービスオフィス
- 居抜物件
- 都市ガス
- 公営水道
- 公共下水
- 電気有
- トイレ共同
備考 当社管理物件!!
伊丹中央貸店舗・西側(1F)
事業用・貸店舗
★【事業用定期借家契約: 期間5年】
※双方合意時のみ再契約可能
★飲食店不可
★居抜き物件となります
従前ご契約『和菓子店舗』使用の内装となっております
引渡しは『現状渡し』の為、
店舗内の内装工事等は借主様負担でお願いいたします
明け渡し時の『現状回復』については協議の上決定いたします
※内観写真は(2025.10.11)撮影分です
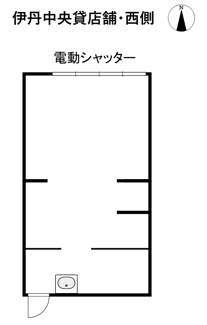
■1969年築(昭和44年)・軽量鉄骨2階建て
■伊丹市中央5丁目で『貸店舗』の募集です!
■2WAY
1)阪急伊丹駅・徒歩6分 2)JR伊丹駅・徒歩8分
■関西スーパー、商店街まで徒歩1分以内で人通りが多く
あらゆる商売に好適です♪
■NET環境 ※対応エリアです
1)NTTフレッツ光 ネクスト
ファミリー・スーパーハイスピードタイプ隼(最大1Gbps)
■【間口】約4.75メートル【奥行】約8メートル
■使用部分面積:約40㎡
■トイレは屋外にあります。
■今回募集店舗の南側は貸ガレージ(5台一括貸し)が利用しているため、
店舗西側面に車の行き来がございます
予めご了承下さいます様お願いいたします。
※ご入居時確認事項あり
【残置物・3箇所】
1)エアコン ダイキン工業株式会社製
2)エアコン 三菱電機株式会社製
3)ダウンライト
契約期間中の修理・メンテンス・交換は借主の負担となります
ご入居前に(撤去 ※費用負担は貸主)
若しくは(使用)の確認をさせていただきます
☆保証会社加入要【事務所・店舗物件:Nテナント24+】
初回保証料:賃料総額の100%
更新保証料:賃料総額の10%~/1年毎
☆火災保険加入要(テナント保険27,000円/2年)
☆鍵交換なし(借主仕様)
☆家賃集金方法:口座振替 手数料要(440円税込/月)
☆契約内容確認事務手数料(5,500円税込/2年)
☆水道料金要(6カ月毎)
☆短期解約の場合違約金特約有り
『1年以内の解約は賃料総額の2ヶ月分、2年以内の解約は賃料総額の1ヶ月分の違約金が発生致します』
【校区】伊丹小学校783m(徒歩)10分
北中学校1213m(徒歩)16分
【コンビニ】ファミリーマート伊丹駅前店386m(徒歩)5分
【スーパー】関西スーパー中央店33m(徒歩)1分条件(その他) 賃料口座振替手数料:440円(月額) 取扱会社 - LIXIL不動産ショップ ハートフルハウス
- 兵庫県尼崎市南塚口町2丁目36-5 ブルームライフ塚口 1階 ※(旧)ノステルコート塚口
- TEL:06-6427-0437
- 兵庫県知事 (5) 第203561号
※地図上に表示される物件の位置は付近住所に所在することを表すものであり、実際の物件所在地とは異なる場合がございます。
物件お問い合わせ
この物件を見た方へのお勧め物件
- エクセル中央 507
- 11.55万円 2LDK/62.72㎡
- 兵庫県伊丹市中央5丁目
- 阪急伊丹線「伊丹」駅 徒歩7分
- エクセル中央 205
- 10.45万円 1LDK/59.29㎡
- 兵庫県伊丹市中央5丁目
- 阪急伊丹線「伊丹」駅 徒歩7分
- テーミス門ノ前 301
- 10.23万円 3LDK/66.85㎡
- 兵庫県伊丹市昆陽南4丁目
- 阪急伊丹線「伊丹」駅





























